Dálkové ovládání, vizualizaci a dozor nad technologií máme zvládnuté na našem dozorovém systému Dispatch. Tento je následníkem původní aplikace nasazené na velkém dozorovém systému 18ti souběžně pracujících modelů rafinérských reaktorů, řízených samostatnými PLC (Honeywel, Adam). Pro svou flexibilitu je použitelný se škálou komunikačních protokolů a jiné lze doplnit. Pro každý modul (PLC nebo jiná platforma) lze vytvořit několik obrazů a záleží jen na Vašich potřebách.

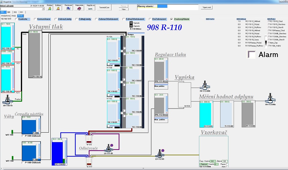
Fiktivní příklad aplikace dispečinkového systému pro jednu stanici je patrný zde:







Systém nepřetržitě komunikuje s řídícími stanicemi a podle zadavatelných vyhodnocení upozorňuje aktivně obsluhu na kritické situace či technologické kroky. Zobrazuje veličiny měřené stanicemi a umožňuje obsluze aktivně měnit řídící staniční data a pracovní režimy. Obdržená data uchovává v komprimační databázi na serveru, z kterého čerpají zpracovatelské PC stanice údaje k dalšímu uživatelskému zpracování. Podle konfigurace sítě lze použít mnoho zpracovatelských stanic k současnému zpracování v časových oknech:



Grafické vyjádření lze zobrazit v nejrůznějších časových oknech a měřítkách, jejich volba je rovněž grafickými prostředky s přehledným zobrazením. Data se přenášejí v komprimovaném tvaru, což zaručuje několikanásobnou rychlost přenosu a také bezpečnost dat. Algoritmus komprimace je originální a nehrozí čitelnost dat jinými subjekty. V dlouhodobých měřících obdobích dochází ke komprimaci až na 10% nekomprimované délky datových záznamů, aniž by utrpěla jejich přesnost. Zpracovatelská stanice umožňuje vytváření grafických výstupů a export dat ve znakovém formátu pro další zpracování např. v Excelu.

Vytváříme však i skromější řešení pro menší aplikace podle Vaší specifikace.